top of page
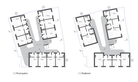
Návrh bytového domu s doplňkovými funkcemi veřejné vybavenosti je zasazen do kontextu tradiční lineární vesnice. Objemem reaguje na okolní zástavbu, přičemž zachovává uliční čáru a doplňuje urbanistickou strukturu obce. Otevřené nároží formuje výrazné vstupní gesto, vtahuje návštěvníka dovnitř a zároveň vytváří prostor pro veřejné setkávání. Tímto způsobem dochází k přirozenému prolínání soukromého, polosoukromého a veřejného prostoru – základní princip komunitního bydlení.
Bytový dům Louka
soutěžní projekt bytových domů pro obec Louka
Rok >
2025
Místo >
obec Louka
Foto >

bottom of page















